―― NPO現代座は、環境、人権、共生の文化と取り組む演劇NPO です ――
home
ホーム
>
現代座会館
>
1階 サロン・小さな船
domain
現代座会館
theater_comedy
小さなNPO劇場
meeting_room
研修室・会議室
local_cafe
サロン・小さな船
curtains
現代座ホール
map
アクセス・地図
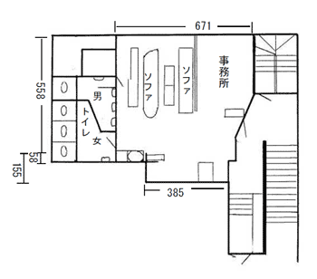
1階 サロン・小さな船
1階にあるスペース「サロン・小さな船」は、どなたでも自由にお茶を飲みながら談話できる場です。少人数での打ち合わせ、休憩などにお使いください。
お茶・珈琲・紅茶などはセルフサービスです。